Viamalatourismus Wappen der Gem. Domleschg Wappen Feldis Wappen von Feldis SBB-Logo
Haus und Schlafzimmer Terrasse und Stube Abendstimmung und Stube Ferienhaus Sableun Sableun im Winter und Kueche Verschneiter Eingang und WC Winterbild und Kinderbett
Allgemeine Informationen
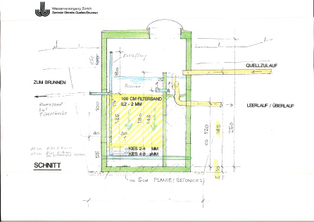
Der neue Wasserfilter (Herbst 2010)

Das Trinkwasser war schon immer trüb, wenn das Haus einige Zeit leer gestanden hatte.
Als vor einigen Jahren Ruedi's Rinder aus einem provisorisch aufgestellten Trog tranken und dabei eine richtige Schweinerei machten, wie Tiere es halt an offenen Tränken machen, drang dieses Wasser in die Brunnenstube ein. Das Wasser roch alles andere als rein!
Dieses Ereignis war der definitive Anstoss zu einem Projekt, das ich schon lange im Hinterkopf hatte, den Bau eines Quellwasserfilters.

Als Mitarbeiter der Wasserversorgung Zürich hatte ich Zugang zu Plänen und dem Know-how der Abteilung Quellenunterhalt. Also machte ich ein sehr rudimentäres Projekt und sandte dies an 3 Unternehmer im Domleschg, mit der Bitte um eine Kostenschätzung.

Ich erhielt tatsächlich 2 Offerten und konnte den günstigsten wählen. Es war die Firma
Caviezel Bauunternehmung GmbH, in 7418 Tomils.
Dies erwies sich später als ein Glücksfall, obwohl nicht alles so lief wie erwünscht. Der Bau wurde durch Schnee verzögert aber dann doch durch schönes Herbstwetter belohnt.

Am Ende stand ein "Termitenhügel" dort wo ich nur zwei ebenerdige Schachtdeckel geplant hatte. Das Loch für den Filter war zuwenig tief gegraben worden. Ich hatte das gesehen, aber gedacht, dass Othmar Caviezel den Aushub vertiefen würde was dann leider nicht der Fall war.


Projektsituation 1 Projektsituation 2 Filterplan
Situationsplan Quellwasserfilter Modell WVZ
 

So erhielt ich eines Tages einen Anruf von einem Gemeinderat von Tomils, ich müsse sofort nach Sableun kommen. Den Filter müsse ich zurückbauen, das gehe so nicht.

So fuhr ich am Samstag nach Feldis um zum verabredeten Zeitpunkt auf der Baustelle zu sein. Es waren mehrere Personen dort versammelt, glücklicherweise auch ein Vertreter des Sessellifts und der Skischule. Die Skifahrer, welche die Traverse nutzten, hatten den Rand des alten Reservoirdeckels schon ganz abgeschrägt, das war auch ein Grund weshalb ich den Filter aus der Piste raus haben wollte.

An der Besprechung einigten wir uns darauf, dass erstens für die Skipiste einige Bäume gefällt werden müssten und ein Hügel etwas abgetragen werden sollte und zweitens, dass ich ein nachträgliches Baugesuch bei der Gemeinde einreichen sollte, Die Angaben dazu seien auf der homepage der Gemeinde. Also machte ich mich daran, ein Baugesuch zu schreiben. Unzählige Formlare und Wegleitungen las ich und füllte auch einige Formulare aus. Ich packte das Ganze in ein Couvert und sandte es an die Gemeinde Tomils. Das war im Frühling 2011, seither habe ich in dieser Angelegenheit nichts mehr von der Gemeinde gehört.

 
Einige Bilder vom Reservoirbau
 
 
Rund ums Haus
 
Bilder aus Feldis
 
Reparaturen und Umbauten in Sableun
 
Bilder von Gästen
 
 
 
Copyright ©Stefan Barandun
Geändert: Juli 2013
nach oben